
正在瀏覽這個版面的使用者: 沒有註冊會員 和 8 位訪客


大富豪 寫:
私家飛机展有冇 invitation?
蘇富比拍賣有冇專人跟住?
去馬交一次有冇4-5億 credit?
上次求投資者有冇 invitation?
去 Hermes 有冇 kelly bag 現貨任要?
有冇連相都未睇就去訂部千二萬賓利?
有冇買幽靈之子打孖買(用 cash 紅黑各一)?
有冇去意大利四五十萬訂金線西装?
有冇去意大利十萬訂對鞋..一次訂幾對?
有冇用百幾萬買副敏魚膠食?
有冇用十幾萬買條大黃花煎?'
如果一樣都冇就做富豪做到好失敗
PS 以上全部真人真事..

aw11onfire 寫:![]()
![]()




Raymond Wan 寫:aw11onfire 寫:![]()
![]()
![]()
![]()
![]()
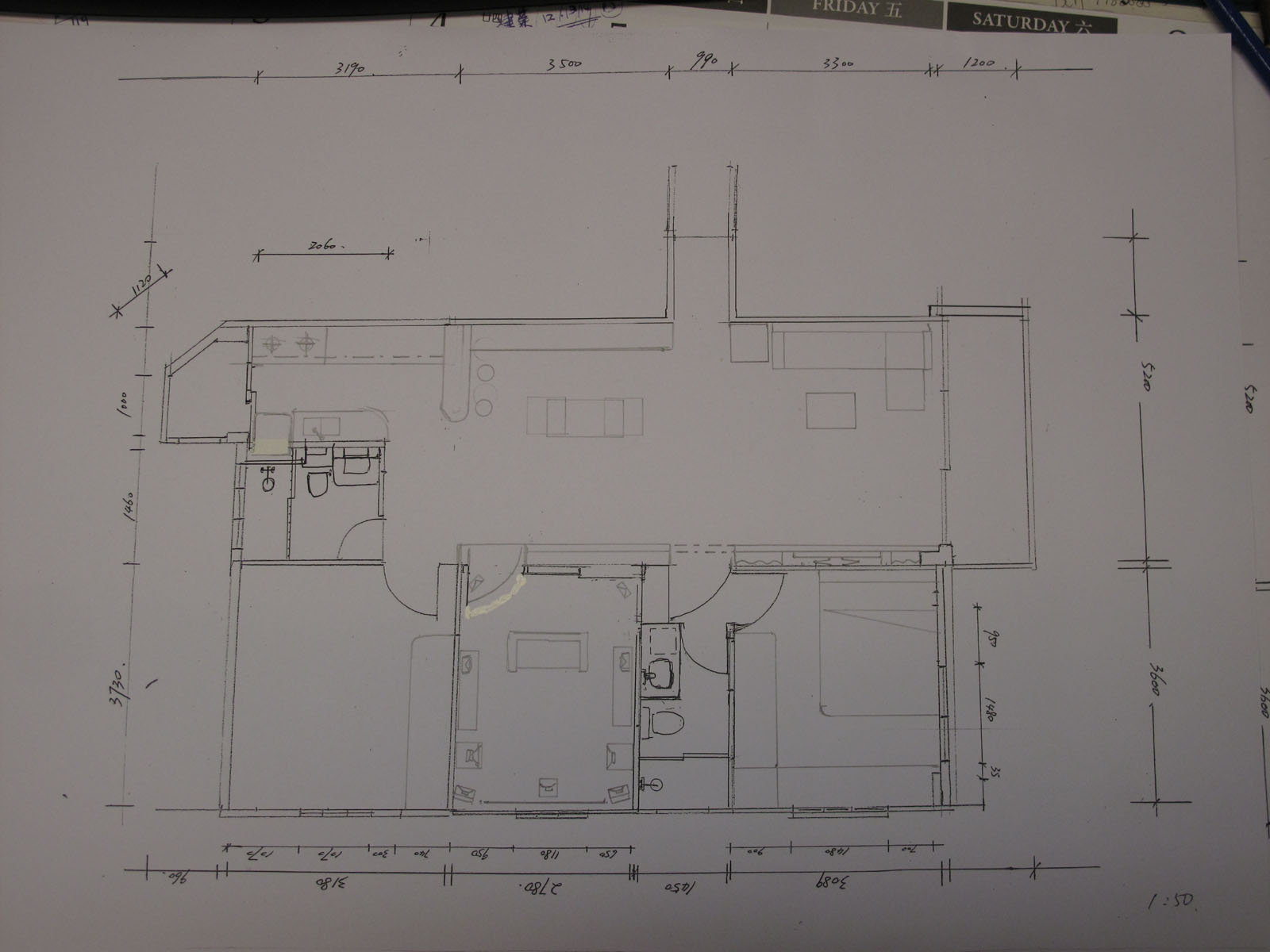
L = 3.73m, W =2.78m
如高是 2.75m,要搞 Room Mode 及處理
特別是 62Hz, 124Hz, 186Hz, ....
![]()
![]()



aw11onfire 寫:MartinTong 寫: AV 房同 客房對調
![]()
![]()
o到


大富豪 寫:
私家飛机展有冇 invitation?
蘇富比拍賣有冇專人跟住?
去馬交一次有冇4-5億 credit?
上次求投資者有冇 invitation?
去 Hermes 有冇 kelly bag 現貨任要?
有冇連相都未睇就去訂部千二萬賓利?
有冇買幽靈之子打孖買(用 cash 紅黑各一)?
有冇去意大利四五十萬訂金線西装?
有冇去意大利十萬訂對鞋..一次訂幾對?
有冇用百幾萬買副敏魚膠食?
有冇用十幾萬買條大黃花煎?'
如果一樣都冇就做富豪做到好失敗
PS 以上全部真人真事..

MartinTong 寫:aw11onfire 寫:MartinTong 寫: AV 房同 客房對調
![]()
![]()
你爆機時你老婆o到
![]()




